Nombre del proyecto: Casa Habitación ASTAUG
Ubicación: Guanajuato capital, México
Año: 2024
Arquitectura:
Arq. César Ramírez Ferro (FERRO, arquitectos / Consultores en Diseño Urbano y Arquitectura)
Arq. Julissa Martínez (Casa Estudio Design)
Descripción del proyecto:
El presente proyecto corresponde a una vivienda unifamiliar de dos niveles, diseñada bajo criterios de funcionalidad, utilidad y adaptación climática, emplazada en un entorno semi-cálido dentro de la ciudad de Guanajuato. Su composición formal responde a una volumetría ortogonal de líneas limpias, donde se integran soluciones minimalistas en el diseño de fachada, materiales y distribución.

Fachada principal

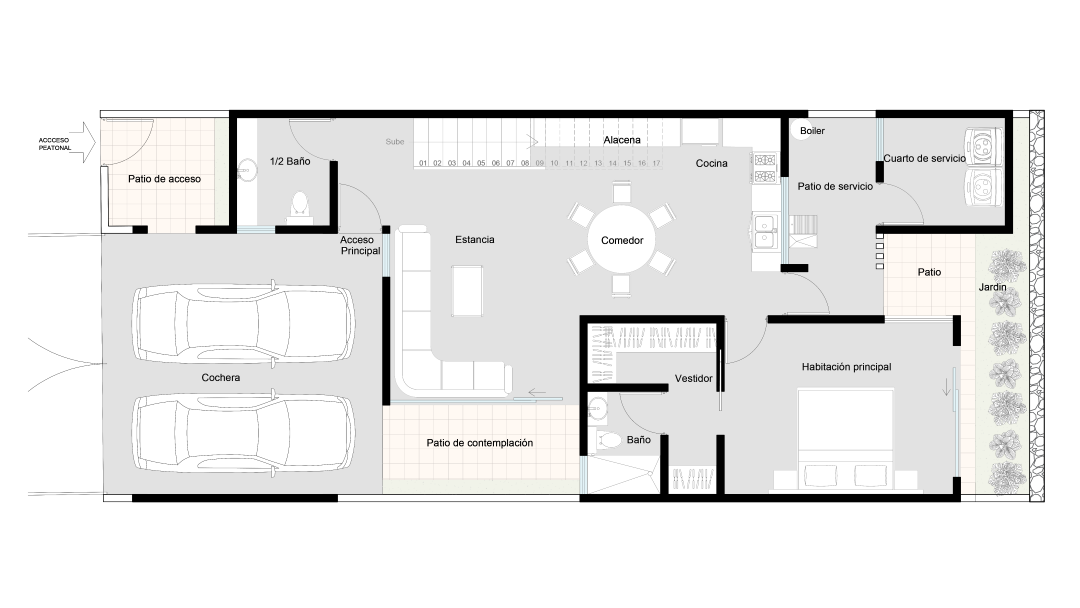
Planta Baja

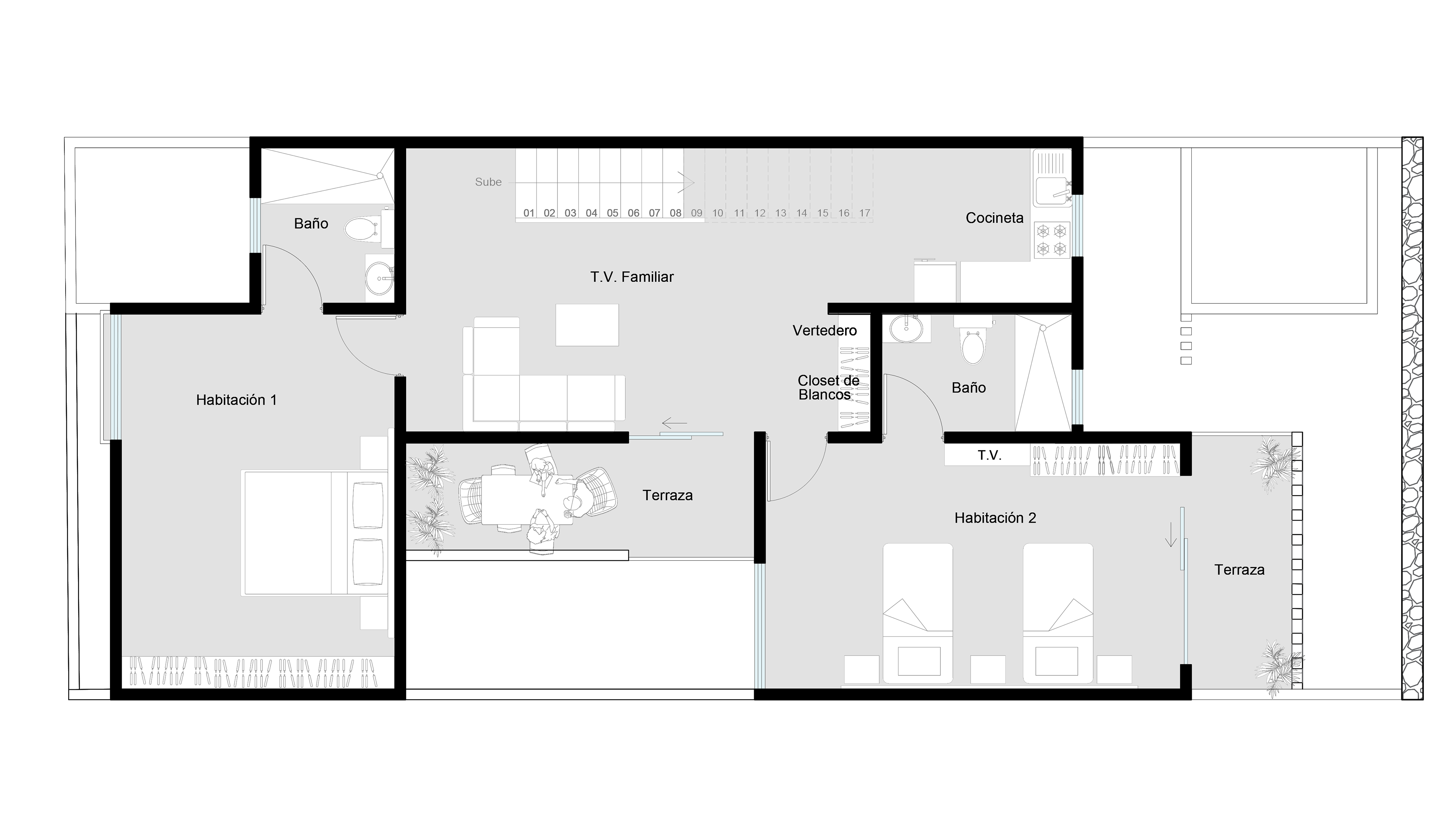
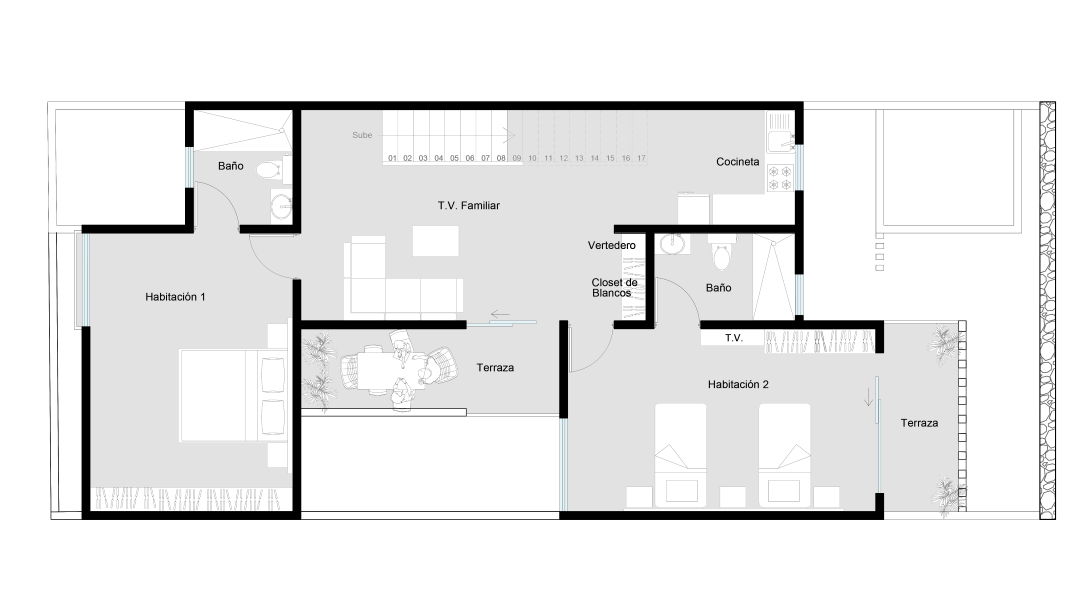
1er. Nivel
Elementos clave del diseño:
-Circulaciones claras y directas, sin pérdida de superficie útil.
-Integración de patios interiores y exteriores como estrategia de iluminación natural, ventilación cruzada y confort térmico.
-Zonificación funcional que permite uso independiente o simultáneo de áreas sociales y privadas.
-Relación interior-exterior cuidada a través de vistas y accesos visuales desde casi todos los espacios principales.

Perspectiva

Interiores recámara principal
El diseño interior de esta recámara principal se define por una atmósfera cálida, serena y contemporánea, en la que se prioriza el confort visual, la funcionalidad del mobiliario y la conexión emocional con el entorno natural inmediato.
Paleta de colores
