Nombre del proyecto: Casa MA 
Ubicación: León, Guanajuato, México
Año: 2026

Arquitectura: 
Arq. César Ramírez Ferro (FERRO, arquitectos / Consultores en Diseño Urbano y Arquitectura)
Arq. Julissa Martínez (Casa Estudio Design)

Descripción del proyecto:
El proyecto corresponde a una vivienda unifamiliar de un nivel, complementada con un segundo nivel destinado a oficinas privadas, integrando usos habitacional y laboral en un mismo predio, sin interferir en su funcionamiento ni privacidad.

Tipo de proyecto: Casa habitación con oficinas
Niveles: Planta baja habitacional + loft para renta + planta alta de oficinas
Estilo arquitectónico: Mexicano Contemporáneo
Usuario: Familia nuclear con actividad profesional independiente
Ubicación: Zona urbana residencial (clima templado a cálido)


Fachada principal

Premisas de Diseño y Contexto

El diseño parte de la necesidad de separar claramente el uso habitacional del uso laboral, resolviendo el programa mediante una volumetría diferenciada que permite una lectura clara de cada función.
Se prioriza:
-La privacidad de la vivienda
-El acceso controlado a oficinas
-La iluminación y ventilación natural
-La relación interior–exterior mediante patios y terrazas
-La propuesta se integra al contexto urbano mediante una imagen sobria, contemporánea y de baja altura, respetando la escala residencial del entorno.


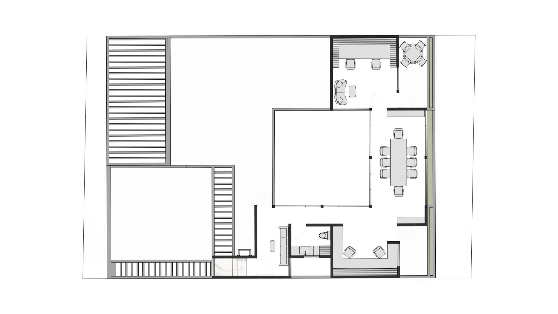
Descripción Arquitectónica – Planta Baja (Casa habitación)

La planta baja alberga la zona habitacional, organizada de manera funcional alrededor de un patio central ajardinado, el cual actúa como elemento articulador del proyecto.

Áreas principales:
- Cochera para tres vehículos al frente
- Acceso principal a la vivienda y loft para renta en la parte frontal del terreno
- Área social de sala, comedor y cocina integrados en un espacio abierto
- Cocina con isla central y alacena
- Baño de visitas
- Área de lavado con acceso a patio de servicio
- Recámara principal con baño y vestidor
- Dos recámaras secundarias
- Baño compartido
- Estar familiar
- Terrazas y áreas exteriores

El patio central garantiza iluminación natural, ventilación cruzada y visuales verdes desde los espacios interiores, mejorando el confort ambiental.
Planta Baja


Área social y escaleras escultóricas hacia planta alta


Habitación principal


Patio posterior con jacuzzi


Criterios Bioclimáticos

- Ventilación cruzada mediante patios y vanos estratégicos
- Control solar con volados y celosías
- Iluminación natural en todos los espacios habitables
- Integración de áreas verdes como reguladores térmicos
Vista desde azotea hacia patio interior


Descripción Arquitectónica – Planta Alta (Oficinas)

El segundo nivel está destinado exclusivamente a oficinas privadas, con un acceso independiente desde el exterior, evitando interferencias con la vida doméstica.
Programa:
- Área de recepción / sala de espera
- Sala de juntas
- Oficina privada
- Área de trabajo
- Baño
- Terraza o área exterior de apoyo
La distribución favorece un ambiente profesional, con iluminación natural controlada y visuales hacia el exterior, manteniendo privacidad respecto a la vivienda.
Planta Alta


Fachada Posterior


Paleta de acabados



Comentarios finales:

"El proyecto resuelve de manera eficiente la coexistencia de vivienda y oficinas, logrando una arquitectura funcional, contemporánea y bien integrada al entorno. La clara zonificación, el uso de materiales nobles y la correcta orientación de los espacios generan un ambiente confortable tanto para la vida familiar como para la actividad profesional."





Back to Top